Stephanie  Käser
Sind Sie interessiert?
Wir freuen uns auf Ihre Kontaktaufnahme:

STEPHANIE KÄSER
Telefon: 062 287 22 40 • s.kaeser@avida.ch

Erstvermietung - 4.5-Zimmerwohnung für die ganze Familie


Hauptstrasse 73A, 6260 Reiden
Externe Homepage   Standort anzeigen     Anfrage / Bewerbung     Gefällt mir  


Mietpreis Brutto
CHF 2'550.00
Nebenkosten
CHF 310.00
Mietpreis Netto
CHF 2'240.00
Verfügbar
ab 01.12.2025
Zimmer
4.5
Wohnfläche
113 m2
Baujahr
2025

Ausstattung

Neubau
Aussicht
Balkon
Einstellplatz
Kinderfreundlich
Rollstuhlgängig
Haustiere erlaubt
Öffentlicher Verkehr (900m)
Einkaufsmöglichkeiten (50m)
Kindergarten (650m)
Primarschule (550m)
Oberstufe (450m)
Autobahnanschluss (900m)

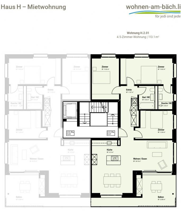
In dieser neuen Überbauung stehen Ihnen verschiedene 4.5-Zimmerwohnungen zur Erstvermietung zur Verfügung - ideal für Familien, die modernes Wohnen mit viel Platz und hoher Wohnqualität verbinden möchten. Bezugsbereit per 01.12.2025.

Folgende Ausstattungen erwarten Sie:

- helle und hohe Räumlichkeiten
- offene und grosszügige Küche mit den neusten Geräten
- geölter Eichenparkett im Wohn- Ess- Arbeit- und Schlafbereich
- Feinsteinzeugplatten in Küche, Reduit und Nasszelle
- Zwei Nasszellen, einmal mit bodengleicher Dusche mit Glastrennwand und einmal mit Badewanne
- Einbauschrank im Eingangsbereich
- inkl. Kellerabteil
- besonnter und grosser Balkon

Im Inserat finden Sie Bilder einer bereits ausgebauten Wohnung - es handelt sich daher um Fotos eines Vergleichsobjekts.

Diese Angaben sowie der in diesem Inserat angegebene Mietzins beziehen sich auf die 4.5-Zimmerwohnung H.2.01 im Haus H dieser Überbauung. Alle Weiteren, für Sie wichtigen Informationen zu Mietzinsen, Grundrisse, der Lage, etc. aller verfügbaren Wohnungen, haben wir für Sie auf einer Homepage, zusammengefasst.

Neben dem attraktiven Wohnraum profitieren Sie von:
- Attraktive Umgebungsgestaltung mit Spielplätzen, Schach- und Mühlefeldern, Sandkasten sowie einem Gemeinschaftsunterstand und Sitzbänke zum Verweilen
- Einstellhallenplätze - für Motorräder, E-Autos mit Ladestation und grosszügigen XL-Parkplätze
- Vorzugskonditionen für die Nutzung des Carsharing-Angebots von Mobility
- Einer zentralen Postpaketstelle direkt auf dem Areal

Die zentrale Lage der Überbauung bietet nicht nur eine bequeme Erreichbarkeit, sondern ermöglicht es auch, die umliegenden Annehmlichkeiten, Geschäfte und Dienstleistungen in kürzester Zeit zu erreichen. Reiden verfügt über eine hervorragende Verkehrslage mit Direktanschlüssen an den Öffentlichen Verkehr und an die Autobahn A2.

Mit der Photovoltaik Anlage auf dem Dach wird ein beträchtlicher Teil an elektrischer Energie selber produziert.

Haben wir Ihr Interesse geweckt? Wir freuen uns auf Ihre Kontaktaufnahme!

Freundliche Grüsse
Das AVIDA-Team

AVIDA - kompetent in Immobilien

Weitere Informationen und Eindrücke finden Sie auch unter: https://wohnen-am-baech.li/mietwohnungen/

Wir sind Ihr Partner! AVIDA - kompetent in Immobilien!